Kurtköy Konut Projesi – Üsthan Yapı & Arkitep Mimarlık
Tasarım ve Proje Bilgileri
Bu proje, İstanbul’un yükselen bölgelerinden Kurtköy’de, Üsthan Yapı tarafından inşa edilmekte olup; tasarımı, cephe çözümü, kat planı ve ruhsat projesi çalışmaları Arkitep Mimarlık tarafından yürütülmüştür.
Modern kent yaşamına uyumlu, estetik ve işlevsel konut tasarımı ile öne çıkan proje; mimari sadelik, güncel yönetmeliklere uygunluk ve kullanıcı deneyimi temel alınarak hazırlanmıştır.
Lokasyon Avantajı
Kurtköy’ün Kalbinde, Her Yere Yakın
Proje alanı; 23 Nisan Caddesi’ne çok yakın konumda yer almakta ve aşağıdaki önemli merkezlere kısa mesafededir:
Lokman Hekim Hastanesi – 0.7 km
Emsey Hastanesi – 0.7 km
Kurtköy Metro Durağı – 1.6 km
Sabiha Gökçen Havalimanı – 3 km
Lens AVM – 3 km
Viaport AVM – 3.01 km
SGK Kurtköy – 0.6 km
Teknopark İstanbul – 3.1 km
Cephe Tasarımı
Cephe tasarımı, hem bölge iklimi hem de mahalle dokusuna uygun olarak sade çizgilerle geliştirilmiştir. Gün ışığını içeri alan geniş açıklıklar, doğal malzeme kullanımı ve dengeli oranlar ile çağdaş bir görünüm sağlanmıştır.
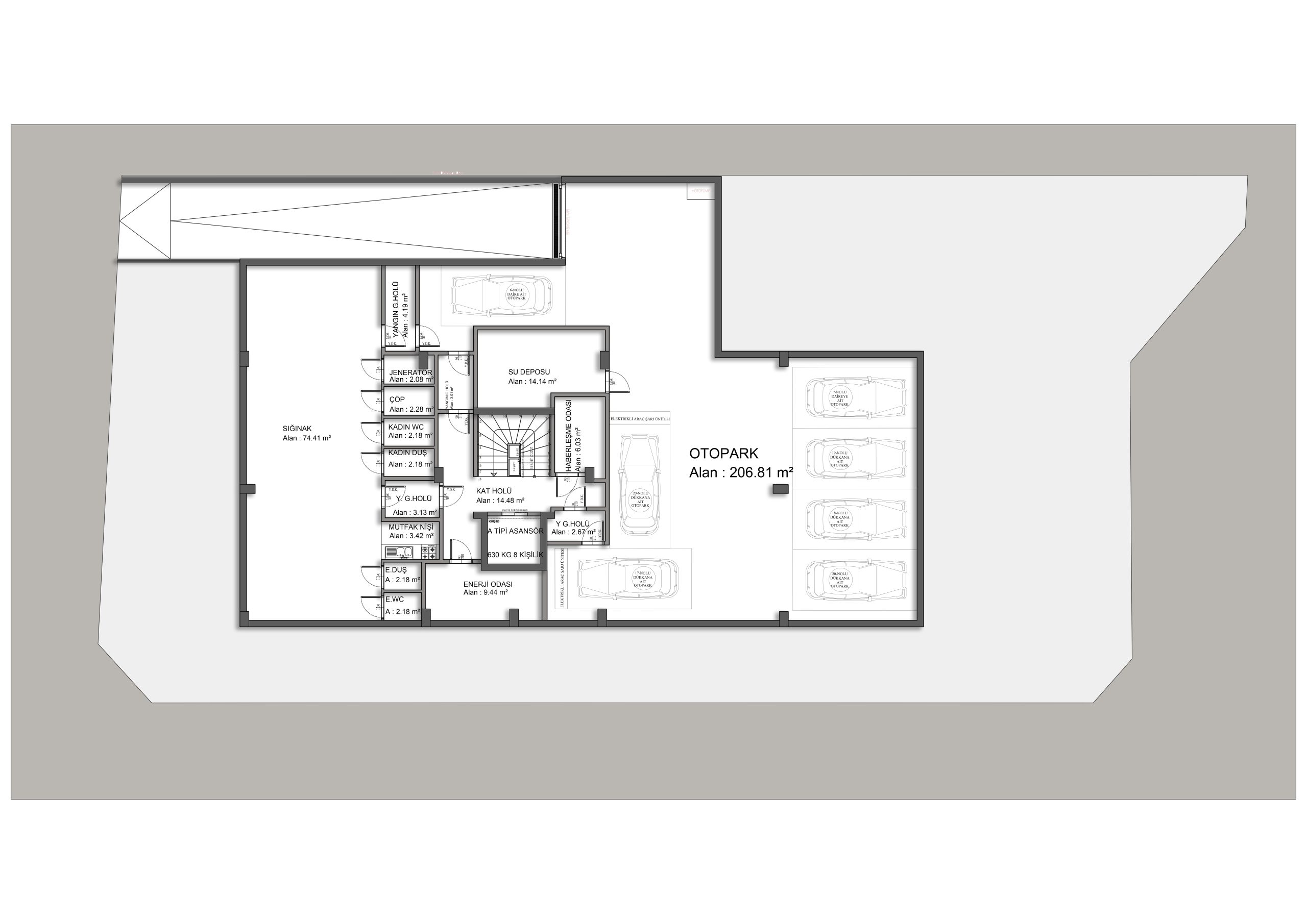
Kat Planları
Fonksiyonel ve Geniş Mekan Organizasyonu
Konut içi yerleşimlerde oda büyüklükleri, aydınlatma, hava sirkülasyonu ve depolama alanları dikkate alınarak her m²’nin verimli kullanılmasına özen gösterilmiştir.
Ruhsat ve Belediye Proje Hizmetleri
Projenin tüm mimari ruhsat süreci, belediye ile koordineli şekilde hazırlanmıştır.
Pendik Belediyesi imar yönetmeliği ve İstanbul Büyükşehir Belediyesi yapı yönetmelikleri dikkate alınarak tüm projeler uygunluk esaslı olarak teslim edilmiştir.


